| 회 사 명 | 주식회사 바이오메이신 (Bio Maysin Co., Ltd.) |
|---|---|
| 설 립 일 | 2021년 04월 26일 |
| 자 본 금 | 1,120백만원 |
| 법인등록번호 | 160111-0589684 |
| 본 사 | 전북 정읍시 금구길 29, RFT실용화연구동 209호 (신정동, 한국원자력연구원 첨단방사선연구소) |
| 공 장 | 전북 정읍시 신정동 1520-1 전북기회발전특구산업단지 (’25년 완공 예정) |
| 사 무 소 | 대전광역시 유성구 유성대로 1646, 이노비즈파크 411, 502호 (전민동, 한남대학교 대덕밸리캠퍼스) |
| 협력농장 |
육묘장 : '봄을담은농부' / 전북 완주군 봉동읍 신성리 800 농지 : ‘한창잔디영농조합법인’ / 전북 익산시 목천로 244 |
Factory Overview
| 공장정보 | |
|---|---|
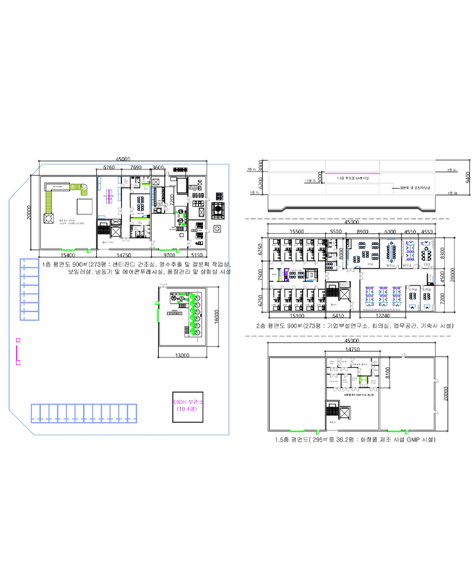
| 위 치 | 전북 정읍시 신정동 1520-1 전북기회발전특구산업단지 |
| 대지면적 | 약 1,280평 (4,236sqm) |
| 건 축 물 |
1층 273평, 1.5층 36.2평, 2층 273평 총 582.2평 (1,924sqm) |
| 예 정 구 축 설 비 | |
|---|---|
| 저온 고속 추출기: 8대 (최대 20대) | 보관용기: 20대 (최대 40대) |
| 저온 고속 농축기: 8대 (최대 20대) | 냉동시설: 1대 (최대 20대) |
| 동결 건조기: 2대 (최대 10대) | 시험장비: 1식 (8종) |
| GMP시설: 의료기기제조등급 100평 | 여 과 기 : 4대 (최대 20대) |